1-к, Сочи Показать на карте
Центральный, КСМ
Сочи
Светский лес - эксклюзивный жилой проект бизнес-класса в Сочи. Это остров цивилизации и технологий в окружении дикой природы национального парка с богатой инфраструктурой, наполненной различными сценариями премиального отдыха и жизни. Общественное пространство ЖК включает в себя прогулочные зоны, СПА комплекс с круглогодичным бассейном, детские и спортивные площадки, велодорожки, собственную набережную реки Сочи, торговую галерею с супермаркетами и ресторанами, а также инновационную школу и детский сад.
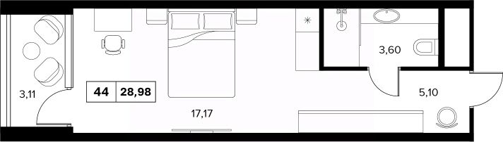
36 м2
3 / 20 этаж
Кирпич - монолит
- Показать контакты
- Добавить в избранное
36 м2
3 / 20 этаж
Кирпич - монолит
17 289 360
472 000 /м2
Новостройка,
II-2028
II-2028
