1-к, Сочи Показать на карте
Лазаревский, Культурное Уч-Дере
Сочи
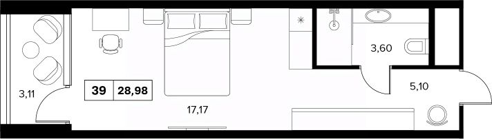
В продаже номер площадью 28.98 м² на 4 этаже в премиальном экокомплексе Белые Ночи. Проект ''Белые ночи'' предлагает человеку образ жизни, в котором сама окружающая среда поддерживает долголетие. Всё устроено так, чтобы телу было легко включаться в ритм: мягкий климат, чистый воздух, маршруты терренкуров, архитектура без перегруженности, сбалансированное питание и световой режим.Внутреннее пространство комплекса- Wellness-пространств- Клинико-диагностический центр LeePrime Medical- Продуктивная среда- Пространство для детского счастья- Ресторан- Собственный пляж с причалом- ПаркингСрок сдачи - 2030 год.''Белые Ночи'' — это воплощение изысканного вкуса и безупречного комфорта. Пространство было создано по эксклюзивному авторскому дизайн-проекту, где каждая деталь интерьера и тщательно подобранная мебель подчеркивают уникальную эстетику. Для вашего удобства номера оснащены премиальной бытовой техникой, а также передовыми системами безопасности и климат-контроля, создающими атмосферу полного спокойствия и уюта.Внимание к деталям — вот что отличает эко-комплекс Белые Ночи.
28 м2
4 / 6 этаж
Кирпич
- Показать контакты
- Добавить в избранное
28 м2
4 / 6 этаж
Кирпич
28 101 906
969 700 /м2
Новостройка,
III-2028
III-2028
