1-к, Сочи Показать на карте
Адлерский, Курортный городок
Сочи
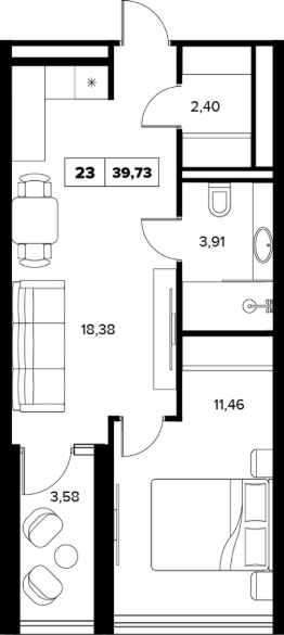
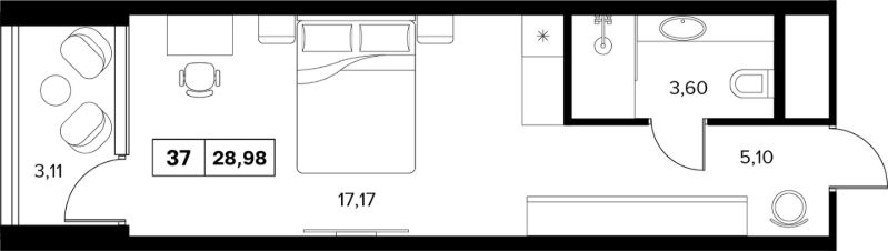
Продаётся 1-комнатная квартира в строящемся доме (Дом 1 ), срок сдачи: II-кв. 2028, общей площадью 31.33 кв.м., на 1 этаже. Volna Residence - это комплекс для жизни на территории комплекса Volna, объединённый с отелем общей концепцией и инфраструктурой. 3 малоэтажных корпуса на 520 номеров расположены на первой береговой линии и имеют собственный бассейн. Территория комплекса Volna - 7,2 га. Более половины этой территории занимает парк и инфраструктура для жизни и отдыха.
31 м2
1 / 4 этаж
Кирпич - монолит
- Показать контакты
- Добавить в избранное
31 м2
1 / 4 этаж
Кирпич - монолит
50 840 000
1 622 726 /м2
Новостройка,
II-2028
II-2028
