1-к, Семашко, 37а корп. 2 Показать на карте
Лазаревский, Культурное Уч-Дере
Сочи
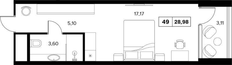
Продаются 1-комнатные апартаменты в строящемся доме (Д.37 А Корпус Б), срок сдачи: III-кв. 2028, общей площадью 28.98 кв.м., на 4 этаже.
28 м2
4 / 8 этаж
Кирпич
- Показать контакты
- Добавить в избранное
28 м2
4 / 8 этаж
Кирпич
27 922 230
963 500 /м2
Новостройка,
III-2028
III-2028
