2-к, Ясногорская, 16/2 корп. 5 Показать на карте
Хостинский, Бытха
Сочи
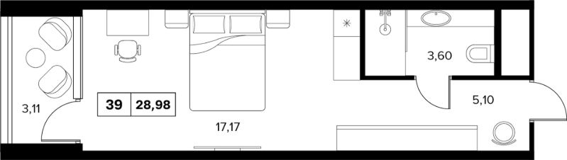
Продаётся 2-комнатная квартира в сданном доме (Корпус 11), срок сдачи: I-кв. 2024, общей площадью 51.7 кв.м., на 13 этаже. Жилой комлекс ''Кислород'' представляет комплексную застройку, состоящую из 20-ти этажных монолитных домов. Застройщиком спроектированы одно-, двух- и трехкомнатные квартиры. Благоустройство прилагающей территории включает в себя строительство детской и спортивной площадки, а также гостевой автостоянки.
51 м2
13 / 19 этаж
Монолит
- Показать контакты
- Добавить в избранное
51 м2
13 / 19 этаж
Монолит
19 439 200
376 000 /м2
Новостройка,
дом сдан
дом сдан
