1-к, Ясногорская, 16/8 корп. 2 Показать на карте
Хостинский, Раздольное
Сочи
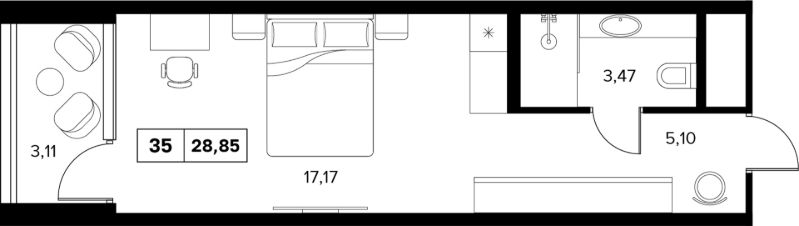
Квартира 24,1 м в одном из самых масштабных проектов бизнес-класса в Сочи Сочи парк.И сегодня у вас есть возможность приобрести квартиру в этом комплексе по специальной цене — предложение действует только до конца недели.Комплекс реализован по концепции город в городе — это закрытое, продуманное пространство для комфортной жизни: благоустроенная охраняемая территория прогулочные аллеи и зоны отдыха современные спортивные и детские площадки оборудованные зоны барбекю коммерческие помещения на первых этажах — всё необходимое рядомКстати, именно здесь проходили съёмки Мажора-5 — локация уже стала узнаваемой. Ключевое преимущество — расположение.Удобный выезд в центр Сочи и к морю позволяет экономить время, при этом сам район остаётся спокойным — без плотного туристического потока и курортной суеты. Это идеальный баланс между динамикой города и приватностью. Инфраструктура активно развивается:— строится школа (филиал одной из сильнейших гимназий города)— современный торговый центр с фудкортами— экопарк с зонами отдыха и медитации Дома выполнены в современном архитектурном стиле: качественные фасадные решения продуманные функциональные планировки впечатляющие видовые характеристикиДаже со средних этажей открываются панорамные виды на море и горы — редкое сочетание для Сочи. Проект одинаково интересен как для жизни, так и для инвестиций.Район активно развивается, спрос на аренду стабильно высокий, а значит — это ликвидный актив с потенциалом роста стоимости.Дома сданы, ключи выдаются сразу после покупки.Такие предложения в Сочи Парке — штучный товар. Осталось всего несколько квартир, и цена действительно актуальна только до конца недели.Остались вопросы? Звоните!
24 м2
19 / 19 этаж
Панель
- Показать контакты
- Добавить в избранное
24 м2
19 / 19 этаж
Панель
7 200 000
298 755 /м2
