1-к, Курортный проспект, 31/1 Показать на карте
Центральный, Центр
Сочи
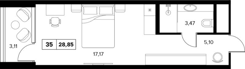
Продаётся 1-комнатная квартира в сданном доме (Дом 31/1), срок сдачи: IV-кв. 2024, общей площадью 39.7 кв.м., на 2 этаже. Новый жилой комплекс ''Гранд Каскад'' от застройщика ''Каскад'' расположен по адресу город Сочи, Курортный проспект.
39 м2
2 / 6 этаж
Кирпич - монолит
- Показать контакты
- Добавить в избранное
39 м2
2 / 6 этаж
Кирпич - монолит
83 370 000
2 100 000 /м2
Новостройка,
дом сдан
дом сдан
