logo
N1.RU — новая улучшенная версия Е1.Недвижимость
Чтобы вернуться на старый сайт Е1.Недвижимость, перейдите по ссылке в нижней части сайта N1.RU
  • Продажа
  • Аренда
  • Новостройки
  • Журнал
  • Компании
  • Шаблоны документов
  • Налоговый вычет
  • Еще
  • Личный кабинет
    • Регистрация на Циан
    • Сочи
  • Добавить объявление
Тип недвижимости
Сочи
Начните вводить или выберите объект в выпадающем списке
  • Район и микрорайон
Количество комнат
Цена
  1. Недвижимость в Сочи
  2. Продажа
  3. Квартиры
  4. 8701 объявление

Продажа квартир в Сочи

  • Вторичка4 697
  • Новостройки4 004
  • Без посредников751
За все время
Сортировка по умолчанию
СпискомСписком
ТаблицейТаблицей
На картеНа карте
Открыть поиск по карте

По вашему запросу объявлений не найдено

1/27
2-к, Семашко, 37а корп. 2 Показать на карте
Лазаревский, Культурное Уч-Дере
Сочи
В продаже номер площадью 39.73 м² на 8 этаже в премиальном экокомплексе Белые Ночи. Проект ''Белые ночи'' предлагает человеку образ жизни, в котором сама окружающая среда поддерживает долголетие. Всё устроено так, чтобы телу было легко включаться в ритм: мягкий климат, чистый воздух, маршруты терренкуров, архитектура без перегруженности, сбалансированное питание и световой режим.Внутреннее пространство комплекса- Wellness-пространств- Клинико-диагностический центр LeePrime Medical- Продуктивная среда- Пространство для детского счастья- Ресторан- Собственный пляж с причалом- ПаркингСрок сдачи - 2030 год.''Белые Ночи'' — это воплощение изысканного вкуса и безупречного комфорта. Пространство было создано по эксклюзивному авторскому дизайн-проекту, где каждая деталь интерьера и тщательно подобранная мебель подчеркивают уникальную эстетику. Для вашего удобства номера оснащены премиальной бытовой техникой, а также передовыми системами безопасности и климат-контроля, создающими атмосферу полного спокойствия и уюта.Внимание к деталям — вот что отличает эко-комплекс Белые Ночи.
39 м2
8 / 8 этаж
Кирпич
  • Показать контакты
  • Добавить в избранное
39 м2
8 / 8 этаж
Кирпич
36 611 195 
921 500 /м2
Новостройка,
III-2028
1/49
1-к, Сочи Показать на карте
Адлерский, Курортный городок
Сочи
Продаются 1-комнатные апартаменты в строящемся доме (Дом 2), срок сдачи: II-кв. 2028, общей площадью 31.45 кв.м., на 3 этаже. Volna Residence - это комплекс для жизни на территории комплекса Volna, объединённый с отелем общей концепцией и инфраструктурой. 3 малоэтажных корпуса на 520 номеров расположены на первой береговой линии и имеют собственный бассейн. Территория комплекса Volna - 7,2 га. Более половины этой территории занимает парк и инфраструктура для жизни и отдыха.
31 м2
3 / 4 этаж
Кирпич - монолит
  • Показать контакты
  • Добавить в избранное
31 м2
3 / 4 этаж
Кирпич - монолит
49 300 000 
1 567 568 /м2
Новостройка,
II-2028
1/27
2-к, Семашко, 37а корп. 2 Показать на карте
Лазаревский, Культурное Уч-Дере
Сочи
В продаже номер площадью 39.73 м² на 8 этаже в премиальном экокомплексе Белые Ночи. Проект ''Белые ночи'' предлагает человеку образ жизни, в котором сама окружающая среда поддерживает долголетие. Всё устроено так, чтобы телу было легко включаться в ритм: мягкий климат, чистый воздух, маршруты терренкуров, архитектура без перегруженности, сбалансированное питание и световой режим.Внутреннее пространство комплекса- Wellness-пространств- Клинико-диагностический центр LeePrime Medical- Продуктивная среда- Пространство для детского счастья- Ресторан- Собственный пляж с причалом- ПаркингСрок сдачи - 2030 год.''Белые Ночи'' — это воплощение изысканного вкуса и безупречного комфорта. Пространство было создано по эксклюзивному авторскому дизайн-проекту, где каждая деталь интерьера и тщательно подобранная мебель подчеркивают уникальную эстетику. Для вашего удобства номера оснащены премиальной бытовой техникой, а также передовыми системами безопасности и климат-контроля, создающими атмосферу полного спокойствия и уюта.Внимание к деталям — вот что отличает эко-комплекс Белые Ночи.
39 м2
8 / 8 этаж
Кирпич
  • Показать контакты
  • Добавить в избранное
39 м2
8 / 8 этаж
Кирпич
36 611 195 
921 500 /м2
Новостройка,
III-2028
1/27
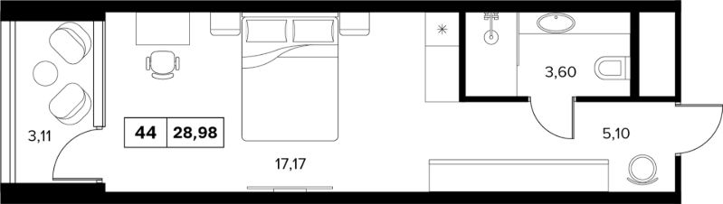
1-к, Семашко, 37а корп. 2 Показать на карте
Лазаревский, Культурное Уч-Дере
Сочи
В продаже номер площадью 28.98 м² на 7 этаже в премиальном экокомплексе Белые Ночи. Проект ''Белые ночи'' предлагает человеку образ жизни, в котором сама окружающая среда поддерживает долголетие. Всё устроено так, чтобы телу было легко включаться в ритм: мягкий климат, чистый воздух, маршруты терренкуров, архитектура без перегруженности, сбалансированное питание и световой режим.Внутреннее пространство комплекса- Wellness-пространств- Клинико-диагностический центр LeePrime Medical- Продуктивная среда- Пространство для детского счастья- Ресторан- Собственный пляж с причалом- ПаркингСрок сдачи - 2030 год.''Белые Ночи'' — это воплощение изысканного вкуса и безупречного комфорта. Пространство было создано по эксклюзивному авторскому дизайн-проекту, где каждая деталь интерьера и тщательно подобранная мебель подчеркивают уникальную эстетику. Для вашего удобства номера оснащены премиальной бытовой техникой, а также передовыми системами безопасности и климат-контроля, создающими атмосферу полного спокойствия и уюта.Внимание к деталям — вот что отличает эко-комплекс Белые Ночи.
28 м2
7 / 8 этаж
Кирпич
  • Показать контакты
  • Добавить в избранное
28 м2
7 / 8 этаж
Кирпич
28 067 130 
968 500 /м2
Новостройка,
III-2028
1/27
1-к, Семашко, 37а корп. 2 Показать на карте
Лазаревский, Культурное Уч-Дере
Сочи
В продаже номер площадью 28.98 м² на 7 этаже в премиальном экокомплексе Белые Ночи. Проект ''Белые ночи'' предлагает человеку образ жизни, в котором сама окружающая среда поддерживает долголетие. Всё устроено так, чтобы телу было легко включаться в ритм: мягкий климат, чистый воздух, маршруты терренкуров, архитектура без перегруженности, сбалансированное питание и световой режим.Внутреннее пространство комплекса- Wellness-пространств- Клинико-диагностический центр LeePrime Medical- Продуктивная среда- Пространство для детского счастья- Ресторан- Собственный пляж с причалом- ПаркингСрок сдачи - 2030 год.''Белые Ночи'' — это воплощение изысканного вкуса и безупречного комфорта. Пространство было создано по эксклюзивному авторскому дизайн-проекту, где каждая деталь интерьера и тщательно подобранная мебель подчеркивают уникальную эстетику. Для вашего удобства номера оснащены премиальной бытовой техникой, а также передовыми системами безопасности и климат-контроля, создающими атмосферу полного спокойствия и уюта.Внимание к деталям — вот что отличает эко-комплекс Белые Ночи.
28 м2
7 / 8 этаж
Кирпич
  • Показать контакты
  • Добавить в избранное
28 м2
7 / 8 этаж
Кирпич
28 067 130 
968 500 /м2
Новостройка,
III-2028
1/49
2-к, Сочи Показать на карте
Адлерский, Курортный городок
Сочи
Продаются 2-комнатные апартаменты в строящемся доме (Дом 3), срок сдачи: II-кв. 2028, общей площадью 78.38 кв.м., на 4 этаже. Volna Residence - это комплекс для жизни на территории комплекса Volna, объединённый с отелем общей концепцией и инфраструктурой. 3 малоэтажных корпуса на 520 номеров расположены на первой береговой линии и имеют собственный бассейн. Территория комплекса Volna - 7,2 га. Более половины этой территории занимает парк и инфраструктура для жизни и отдыха.
78 м2
4 / 4 этаж
Кирпич - монолит
  • Показать контакты
  • Добавить в избранное
78 м2
4 / 4 этаж
Кирпич - монолит
118 450 000 
1 511 227 /м2
Новостройка,
II-2028
1/49
2-к, Сочи Показать на карте
Адлерский, Курортный городок
Сочи
Продаются 2-комнатные апартаменты в строящемся доме (Дом 3), срок сдачи: II-кв. 2028, общей площадью 78.38 кв.м., на 2 этаже. Volna Residence - это комплекс для жизни на территории комплекса Volna, объединённый с отелем общей концепцией и инфраструктурой. 3 малоэтажных корпуса на 520 номеров расположены на первой береговой линии и имеют собственный бассейн. Территория комплекса Volna - 7,2 га. Более половины этой территории занимает парк и инфраструктура для жизни и отдыха.
78 м2
2 / 4 этаж
Кирпич - монолит
  • Показать контакты
  • Добавить в избранное
78 м2
2 / 4 этаж
Кирпич - монолит
117 100 000 
1 494 004 /м2
Новостройка,
II-2028
1/49
2-к, Сочи Показать на карте
Адлерский, Курортный городок
Сочи
Продаются 2-комнатные апартаменты в строящемся доме (Дом 3), срок сдачи: II-кв. 2028, общей площадью 78.38 кв.м., на 3 этаже. Volna Residence - это комплекс для жизни на территории комплекса Volna, объединённый с отелем общей концепцией и инфраструктурой. 3 малоэтажных корпуса на 520 номеров расположены на первой береговой линии и имеют собственный бассейн. Территория комплекса Volna - 7,2 га. Более половины этой территории занимает парк и инфраструктура для жизни и отдыха.
78 м2
3 / 4 этаж
Кирпич - монолит
  • Показать контакты
  • Добавить в избранное
78 м2
3 / 4 этаж
Кирпич - монолит
118 050 000 
1 506 124 /м2
Новостройка,
II-2028
1/49
2-к, Сочи Показать на карте
Адлерский, Курортный городок
Сочи
Продаются 2-комнатные апартаменты в строящемся доме (Дом 2), срок сдачи: II-кв. 2028, общей площадью 78.38 кв.м., на 3 этаже. Volna Residence - это комплекс для жизни на территории комплекса Volna, объединённый с отелем общей концепцией и инфраструктурой. 3 малоэтажных корпуса на 520 номеров расположены на первой береговой линии и имеют собственный бассейн. Территория комплекса Volna - 7,2 га. Более половины этой территории занимает парк и инфраструктура для жизни и отдыха.
78 м2
3 / 4 этаж
Кирпич - монолит
  • Показать контакты
  • Добавить в избранное
78 м2
3 / 4 этаж
Кирпич - монолит
124 150 000 
1 583 950 /м2
Новостройка,
II-2028
1/49
2-к, Сочи Показать на карте
Адлерский, Курортный городок
Сочи
Продаются 2-комнатные апартаменты в строящемся доме (Дом 2), срок сдачи: II-кв. 2028, общей площадью 78.38 кв.м., на 2 этаже. Volna Residence - это комплекс для жизни на территории комплекса Volna, объединённый с отелем общей концепцией и инфраструктурой. 3 малоэтажных корпуса на 520 номеров расположены на первой береговой линии и имеют собственный бассейн. Территория комплекса Volna - 7,2 га. Более половины этой территории занимает парк и инфраструктура для жизни и отдыха.
78 м2
2 / 4 этаж
Кирпич - монолит
  • Показать контакты
  • Добавить в избранное
78 м2
2 / 4 этаж
Кирпич - монолит
123 200 000 
1 571 830 /м2
Новостройка,
II-2028
1/49
2-к, Сочи Показать на карте
Адлерский, Курортный городок
Сочи
Продаются 2-комнатные апартаменты в строящемся доме (Дом 3), срок сдачи: II-кв. 2028, общей площадью 78.38 кв.м., на 4 этаже. Volna Residence - это комплекс для жизни на территории комплекса Volna, объединённый с отелем общей концепцией и инфраструктурой. 3 малоэтажных корпуса на 520 номеров расположены на первой береговой линии и имеют собственный бассейн. Территория комплекса Volna - 7,2 га. Более половины этой территории занимает парк и инфраструктура для жизни и отдыха.
78 м2
4 / 4 этаж
Кирпич - монолит
  • Показать контакты
  • Добавить в избранное
78 м2
4 / 4 этаж
Кирпич - монолит
118 650 000 
1 513 779 /м2
Новостройка,
II-2028
1/49
2-к, Сочи Показать на карте
Адлерский, Курортный городок
Сочи
Продаются 2-комнатные апартаменты в строящемся доме (Дом 3), срок сдачи: II-кв. 2028, общей площадью 78.38 кв.м., на 4 этаже. Volna Residence - это комплекс для жизни на территории комплекса Volna, объединённый с отелем общей концепцией и инфраструктурой. 3 малоэтажных корпуса на 520 номеров расположены на первой береговой линии и имеют собственный бассейн. Территория комплекса Volna - 7,2 га. Более половины этой территории занимает парк и инфраструктура для жизни и отдыха.
78 м2
4 / 4 этаж
Кирпич - монолит
  • Показать контакты
  • Добавить в избранное
78 м2
4 / 4 этаж
Кирпич - монолит
118 650 000 
1 513 779 /м2
Новостройка,
II-2028
1/49
2-к, Сочи Показать на карте
Адлерский, Курортный городок
Сочи
Продаются 2-комнатные апартаменты в строящемся доме (Дом 3), срок сдачи: II-кв. 2028, общей площадью 78.38 кв.м., на 4 этаже. Volna Residence - это комплекс для жизни на территории комплекса Volna, объединённый с отелем общей концепцией и инфраструктурой. 3 малоэтажных корпуса на 520 номеров расположены на первой береговой линии и имеют собственный бассейн. Территория комплекса Volna - 7,2 га. Более половины этой территории занимает парк и инфраструктура для жизни и отдыха.
78 м2
4 / 4 этаж
Кирпич - монолит
  • Показать контакты
  • Добавить в избранное
78 м2
4 / 4 этаж
Кирпич - монолит
118 450 000 
1 511 227 /м2
Новостройка,
II-2028
1/49
2-к, Сочи Показать на карте
Адлерский, Курортный городок
Сочи
Продаются 2-комнатные апартаменты в строящемся доме (Дом 3), срок сдачи: II-кв. 2028, общей площадью 78.38 кв.м., на 3 этаже. Volna Residence - это комплекс для жизни на территории комплекса Volna, объединённый с отелем общей концепцией и инфраструктурой. 3 малоэтажных корпуса на 520 номеров расположены на первой береговой линии и имеют собственный бассейн. Территория комплекса Volna - 7,2 га. Более половины этой территории занимает парк и инфраструктура для жизни и отдыха.
78 м2
3 / 4 этаж
Кирпич - монолит
  • Показать контакты
  • Добавить в избранное
78 м2
3 / 4 этаж
Кирпич - монолит
118 250 000 
1 508 676 /м2
Новостройка,
II-2028
1/49
2-к, Сочи Показать на карте
Адлерский, Курортный городок
Сочи
Продаются 2-комнатные апартаменты в строящемся доме (Дом 3), срок сдачи: II-кв. 2028, общей площадью 78.38 кв.м., на 3 этаже. Volna Residence - это комплекс для жизни на территории комплекса Volna, объединённый с отелем общей концепцией и инфраструктурой. 3 малоэтажных корпуса на 520 номеров расположены на первой береговой линии и имеют собственный бассейн. Территория комплекса Volna - 7,2 га. Более половины этой территории занимает парк и инфраструктура для жизни и отдыха.
78 м2
3 / 4 этаж
Кирпич - монолит
  • Показать контакты
  • Добавить в избранное
78 м2
3 / 4 этаж
Кирпич - монолит
118 050 000 
1 506 124 /м2
Новостройка,
II-2028
1/49
2-к, Сочи Показать на карте
Адлерский, Курортный городок
Сочи
Продаются 2-комнатные апартаменты в строящемся доме (Дом 3), срок сдачи: II-кв. 2028, общей площадью 78.38 кв.м., на 2 этаже. Volna Residence - это комплекс для жизни на территории комплекса Volna, объединённый с отелем общей концепцией и инфраструктурой. 3 малоэтажных корпуса на 520 номеров расположены на первой береговой линии и имеют собственный бассейн. Территория комплекса Volna - 7,2 га. Более половины этой территории занимает парк и инфраструктура для жизни и отдыха.
78 м2
2 / 4 этаж
Кирпич - монолит
  • Показать контакты
  • Добавить в избранное
78 м2
2 / 4 этаж
Кирпич - монолит
117 100 000 
1 494 004 /м2
Новостройка,
II-2028
1/49
2-к, Сочи Показать на карте
Адлерский, Курортный городок
Сочи
Продаются 2-комнатные апартаменты в строящемся доме (Дом 2), срок сдачи: II-кв. 2028, общей площадью 78.38 кв.м., на 3 этаже. Volna Residence - это комплекс для жизни на территории комплекса Volna, объединённый с отелем общей концепцией и инфраструктурой. 3 малоэтажных корпуса на 520 номеров расположены на первой береговой линии и имеют собственный бассейн. Территория комплекса Volna - 7,2 га. Более половины этой территории занимает парк и инфраструктура для жизни и отдыха.
78 м2
3 / 4 этаж
Кирпич - монолит
  • Показать контакты
  • Добавить в избранное
78 м2
3 / 4 этаж
Кирпич - монолит
124 150 000 
1 583 950 /м2
Новостройка,
II-2028
1/49
2-к, Сочи Показать на карте
Адлерский, Курортный городок
Сочи
Продаются 2-комнатные апартаменты в строящемся доме (Дом 2), срок сдачи: II-кв. 2028, общей площадью 78.38 кв.м., на 3 этаже. Volna Residence - это комплекс для жизни на территории комплекса Volna, объединённый с отелем общей концепцией и инфраструктурой. 3 малоэтажных корпуса на 520 номеров расположены на первой береговой линии и имеют собственный бассейн. Территория комплекса Volna - 7,2 га. Более половины этой территории занимает парк и инфраструктура для жизни и отдыха.
78 м2
3 / 4 этаж
Кирпич - монолит
  • Показать контакты
  • Добавить в избранное
78 м2
3 / 4 этаж
Кирпич - монолит
124 150 000 
1 583 950 /м2
Новостройка,
II-2028
1/49
2-к, Сочи Показать на карте
Адлерский, Курортный городок
Сочи
Продаются 2-комнатные апартаменты в строящемся доме (Дом 2), срок сдачи: II-кв. 2028, общей площадью 78.38 кв.м., на 2 этаже. Volna Residence - это комплекс для жизни на территории комплекса Volna, объединённый с отелем общей концепцией и инфраструктурой. 3 малоэтажных корпуса на 520 номеров расположены на первой береговой линии и имеют собственный бассейн. Территория комплекса Volna - 7,2 га. Более половины этой территории занимает парк и инфраструктура для жизни и отдыха.
78 м2
2 / 4 этаж
Кирпич - монолит
  • Показать контакты
  • Добавить в избранное
78 м2
2 / 4 этаж
Кирпич - монолит
123 200 000 
1 571 830 /м2
Новостройка,
II-2028
1/27
3-к, Семашко, 37а корп. 2 Показать на карте
Лазаревский, Культурное Уч-Дере
Сочи
В продаже номер площадью 65.97 м² на 3 этаже в премиальном экокомплексе Белые Ночи. Проект ''Белые ночи'' предлагает человеку образ жизни, в котором сама окружающая среда поддерживает долголетие. Всё устроено так, чтобы телу было легко включаться в ритм: мягкий климат, чистый воздух, маршруты терренкуров, архитектура без перегруженности, сбалансированное питание и световой режим.Внутреннее пространство комплекса- Wellness-пространств- Клинико-диагностический центр LeePrime Medical- Продуктивная среда- Пространство для детского счастья- Ресторан- Собственный пляж с причалом- ПаркингСрок сдачи - 2030 год.''Белые Ночи'' — это воплощение изысканного вкуса и безупречного комфорта. Пространство было создано по эксклюзивному авторскому дизайн-проекту, где каждая деталь интерьера и тщательно подобранная мебель подчеркивают уникальную эстетику. Для вашего удобства номера оснащены премиальной бытовой техникой, а также передовыми системами безопасности и климат-контроля, создающими атмосферу полного спокойствия и уюта.Внимание к деталям — вот что отличает эко-комплекс Белые Ночи.
65 м2
3 / 8 этаж
Кирпич
  • Показать контакты
  • Добавить в избранное
65 м2
3 / 8 этаж
Кирпич
54 887 040 
832 000 /м2
Новостройка,
III-2028
1/6
1-к, Ломоносовская, 2б Показать на карте
Хостинский, Бытха
Сочи
ЖК ''Новая Альпика'' представляет собой современный жилой комплекс, где представлены квартиры комфорт- и бизнес-класса. ЖК ''Новая Альпика'' разработан с учетом потребностей широкой аудитории покупателей, которые ценят высокое качество жилья и удобство проживания.Расположение комплекса является его значительным преимуществом. Территория находится в непосредственной близости от санатория ''Золотой колос'', что обеспечивает доступ к зеленым рекреационным зонам.Благодаря близкому расположению к Курортному проспекту и его дублеру, жители могут оперативно добраться в любую часть города. Дорога до аэропорта занимает около 20 минут, до Олимпийского парка примерно 25 минут. Поездка до Красной Поляны займет приблизительно час.Комплекс включает два корпуса, высота которых не превышает семи этажей. Такое архитектурное решение способствует формированию комфортной и спокойной атмосферы для проживания.
48 м2
2 / 7 этаж
Монолит
  • Показать контакты
  • Добавить в избранное
48 м2
2 / 7 этаж
Монолит
19 680 000 
410 000 /м2
1/6
1-к, Ломоносовская, 2б Показать на карте
Хостинский, Бытха
Сочи
ЖК ''Новая Альпика'' представляет собой современный жилой комплекс, где представлены квартиры комфорт- и бизнес-класса. ЖК ''Новая Альпика'' разработан с учетом потребностей широкой аудитории покупателей, которые ценят высокое качество жилья и удобство проживания.Расположение комплекса является его значительным преимуществом. Территория находится в непосредственной близости от санатория ''Золотой колос'', что обеспечивает доступ к зеленым рекреационным зонам.Благодаря близкому расположению к Курортному проспекту и его дублеру, жители могут оперативно добраться в любую часть города. Дорога до аэропорта занимает около 20 минут, до Олимпийского парка примерно 25 минут. Поездка до Красной Поляны займет приблизительно час.Комплекс включает два корпуса, высота которых не превышает семи этажей. Такое архитектурное решение способствует формированию комфортной и спокойной атмосферы для проживания.
30 м2
4 / 7 этаж
Монолит
  • Показать контакты
  • Добавить в избранное
30 м2
4 / 7 этаж
Монолит
12 699 000 
415 000 /м2
1/27
1-к, Сочи Показать на карте
Адлерский, Адлер
Сочи
Комплекс апартаментов элитного класса представлен 8-этажным зданием, возведенным по монолитной технологии с вентилируемым фасадом из керамогранита. В доме установлены пассажирский и грузовой лифты, предусмотрены дизайнерские холлы.В проекте предлагаются апартаменты площадью от 56 до 380 кв. м с панорамными окнами и высотой потолков 3,15 м. Из окон открываются виды окружающий ландшафт. Отделка выполнена в чистовом варианте с применением премиальных материалов — кварцвинилового ламината, керамогранита, МДФ-панелей и декоративных покрытий. В ванных комнатах установлена сантехника высокого класса: душевая система, подвесной унитаз, раковины, смесители и полотенцесушители.Проект реализован в уникальной концепции, сочетающей жилой формат и инфраструктуру премиального отеля. Это единственный отель в Сочи с брендовыми ресторанами авторской и высокой кухни. Для резидентов создана единая экосистема с развитым сервисом и зонами отдыха. На территории находится крупнейший в городе открытый бассейн. Для владельцев авто оборудованы стоянки.Комплекс расположен в Адлере — престижной прибрежной зоне с развитой инфраструктурой и природным окружением. В 510 минутах пешком находятся кафе, рестораны, магазины, аптеки, фитнес-клубы, парки и пляж на побережье Черного моря. Вблизи протекает река Мзымта. Дорога до аэропорта Сочи занимает 10 минут транспортом, до федеральной территории Сириус — 15 минут, а до центра города можно добраться за 40 минут транспортом.
65 м2
3 / 9 этаж
Кирпич - монолит
  • Показать контакты
  • Добавить в избранное
65 м2
3 / 9 этаж
Кирпич - монолит
91 700 000 
1 400 000 /м2
Новостройка,
I-2030
1/6
1-к, Ломоносовская, 2б Показать на карте
Хостинский, Бытха
Сочи
ЖК ''Новая Альпика'' представляет собой современный жилой комплекс, где представлены квартиры комфорт- и бизнес-класса. ЖК ''Новая Альпика'' разработан с учетом потребностей широкой аудитории покупателей, которые ценят высокое качество жилья и удобство проживания.Расположение комплекса является его значительным преимуществом. Территория находится в непосредственной близости от санатория ''Золотой колос'', что обеспечивает доступ к зеленым рекреационным зонам.Благодаря близкому расположению к Курортному проспекту и его дублеру, жители могут оперативно добраться в любую часть города. Дорога до аэропорта занимает около 20 минут, до Олимпийского парка примерно 25 минут. Поездка до Красной Поляны займет приблизительно час.Комплекс включает два корпуса, высота которых не превышает семи этажей. Такое архитектурное решение способствует формированию комфортной и спокойной атмосферы для проживания.
30 м2
3 / 7 этаж
Монолит
  • Показать контакты
  • Добавить в избранное
30 м2
3 / 7 этаж
Монолит
12 699 000 
415 000 /м2
1/6
1-к, Ломоносовская, 2б Показать на карте
Хостинский, Бытха
Сочи
ЖК ''Новая Альпика'' представляет собой современный жилой комплекс, где представлены квартиры комфорт- и бизнес-класса. ЖК ''Новая Альпика'' разработан с учетом потребностей широкой аудитории покупателей, которые ценят высокое качество жилья и удобство проживания.Расположение комплекса является его значительным преимуществом. Территория находится в непосредственной близости от санатория ''Золотой колос'', что обеспечивает доступ к зеленым рекреационным зонам.Благодаря близкому расположению к Курортному проспекту и его дублеру, жители могут оперативно добраться в любую часть города. Дорога до аэропорта занимает около 20 минут, до Олимпийского парка примерно 25 минут. Поездка до Красной Поляны займет приблизительно час.Комплекс включает два корпуса, высота которых не превышает семи этажей. Такое архитектурное решение способствует формированию комфортной и спокойной атмосферы для проживания.
45 м2
7 / 7 этаж
Монолит
  • Показать контакты
  • Добавить в избранное
45 м2
7 / 7 этаж
Монолит
18 758 000 
415 000 /м2
  • В начало
  • 21
  • 22
  • 23
  • 24
  • 25
  • Следующая
Распечатать
Продажа квартир в Сочи
  • по районам
  • Адлерский
  • Лазаревский
  • Хостинский
  • Центральный

Вместе с этим также ищут:

Продажа квартир в Сочи Продажа однокомнатных квартир в Сочи Продажа комнат в Сочи Продажа гаражей в Сочи Продажа вторички - квартиры в Сочи Квартиры в новостройках в Сочи

🏠 Как купить квартиру в Сочи на N1?

  • ✔ В поисках объявления о продаже или покупке квартир в Сочи?
  • ✔ На N1 размещены 8,70 тыс квартир
  • ✔ Чтобы купить или продать недвижимость, воспользуйтесь формой поиска, фильтрами или быстрыми ссылками.

💸 Сколько стоит квартира в Сочи?

  • 🟢 Средняя цена продажи квартир - 34,46 млн ₽
  • 🟢 Минимальная стоимость за 1 м2: 668,73 тыс ₽

📚 Какая площадь квартир?

  • Наибольшая площадь: 670 м²
  • Минимальная площадь: 12 м²