3-к, Сочи Показать на карте
Лазаревский, Культурное Уч-Дере
Сочи
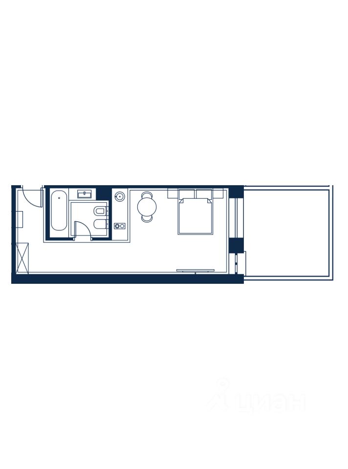
Просторные 3-комн. апартаменты с европланировкой в ГК ''Белые Ночи'' на 6 этаже. Апартаменты без отделки, новый собственник может сделать ремонт по индивидуальному проекту. Общая площадь: 69.71 кв.м., жилая: 46.95 кв.м., общая площадь гостиной-столовой с кухонной зоной: 26.67 кв.м. Европейская планировка, кухня и гостиная объединены в одно просторное помещение. Угловая квартира, окна oбecпeчивaют paвнoмepнoe ocвeщeниe в тeчeниe дня. В апартаментах одна лоджия, два совмещенных санузла. Высота потолков 3.3 м. Апартаменты находятся в корпусе А. Дом монолитный, одноподъездный, высотой 13 этажей. На этаже 12 квартир. В подъезде 1 пассажирский и 1 грузовой лифт. Окончание строительства - 4 квартал 2028 года. Оформление сделки по договору долевого участия. Экорезиденция ''Белые ночи'' — современный санаторно-курортный комплекс в предгорной зоне Лоо, занимающий территорию около 9 гектаров. Пространство сформировано так, чтобы сочетать архитектуру, природную среду и восстановительные практики. Корпуса высотой 810 этажей выполнены в современном стиле с использованием керамогранита и панорамного остекления. Номера отличаются продуманными планировками, высоким уровнем естественного освещения и комфортными интерьерными решениями.Территория экорезиденции располагается рядом с морем — всего 350 метров до побережья и 5 минут до собственного пляжа. Комплекс окружён природным массивом Уч-Дере и дендропарком, где представлено более 2 000 видов растений. Такое окружение формирует мягкий климат и устойчивый оздоровительный эффект.Ключевые параметры локации:- 350 м — расстояние до моря- 5 минут — собственный пляж- 15 минут — до Дагомыса- 30 минут — торговые центры Имеретинки- 40 минут — аэропорт и ж/д вокзал Адлера- 60 минут — Красная Поляна Экорезиденция включает пять корпусов, каждый со своим архитектурным характером и функциональной специализацией. Центральным элементом комплекса является санаторно-оздоровительная инфраструктура: современный медицинский блок, термальные зоны, wellness-пространства и акватермальный центр. Здесь доступны бассейны, тематические парные, финская сауна с видом на море, арома- и биосауна, гидротерапевтические зоны и пространства для восстановления.Внутреннее благоустройство продолжает концепцию курортной экосреды: бассейны под открытым небом, прогулочные маршруты, терренкуры, озеленённые зоны отдыха, тихие площадки и ландшафтные акценты. Инфраструктура дополнена фитнес-пространствами, SPA, детским клубом, магазинами и сервисами повседневного комфорта.Экорезиденция ''Белые ночи'' сформирована как пространство, где природный потенциал усиливается архитектурой, сервисами и медицинским подходом к оздоровлению. Такой формат привлекает тех, кто рассматривает проект как долгосрочную точку отдыха, проживания или инвестирования в стабильный курортный продукт.
69 м2
6 / 6 этаж
Кирпич
- Показать контакты
- Добавить в избранное
69 м2
6 / 6 этаж
Кирпич
58 277 560
836 000 /м2
Новостройка,
III-2028
III-2028
