Дом, Нижнехобзинская Показать на карте
Лазаревский, Нижняя Хобза
Сочи
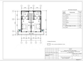
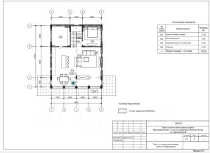
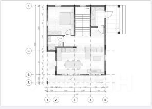
Код объекта: 2113826.Продаётся уютный дом в Сочи — 3 спальни и просторная кухня-гостиная на участке ИЖСВ живописном и перспективном районе Сочи выставлен на продажу современный дом, идеально подходящий для семьи или отдыха у моря. Дом построен по монолитно-блочной технологии, что гарантирует надёжность и долговечность. Предчистовая отделка позволяет сразу приступить к ремонту по вашему вкусу, а при желании можно заказать ремонт ''под ключ'' за дополнительную плату.Планировка и удобства- Кухня-гостиная — 32 м², при необходимости можно выделить кухню 16,6 м².- Три спальни: 16,72 м², 13,314 м² и 12,12 м² — у каждого члена семьи будет своё пространство.- Участок ИЖС — 5 соток в собственности, прямоугольной формы 2917 м, с уже выполненной планировкой и установленным забором.- На территории есть бассейн для отдыха в жаркие дни.Коммуникации:Вода - центральнаяОтопление - газовый котел, теплый полКанализация - индивидуальный септикЛокацияДом расположен в одном из самых зелёных районов Сочи. До пляжа всего 1,3 км — спокойным шагом не более 20 минут. Местность ровная, подъезд асфальтированный, что особенно удобно для семей с детьми и пожилых людей.СделкаДом полностью готов к проживанию. Ключи передаются в день сделки, возможна быстрая продажа по договору купли-продажи.Звоните прямо сейчас, чтобы договориться о просмотре и узнать все подробности! Этот дом станет вашим уютным уголком у моря или выгодной инвестицией в будущее.
140 м2
2 этажа
Монолит
- Показать контакты
- Добавить в избранное
140 м2
2 этажа
Монолит
29 000 000
207 143 /м2
