2-к, Сочи Показать на карте
Адлерский, Курортный городок
Сочи
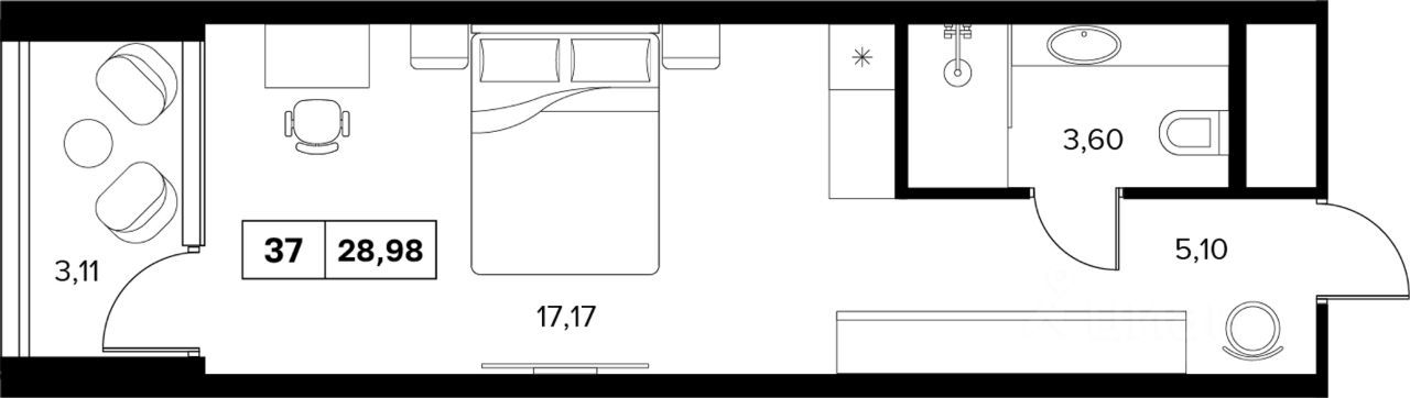
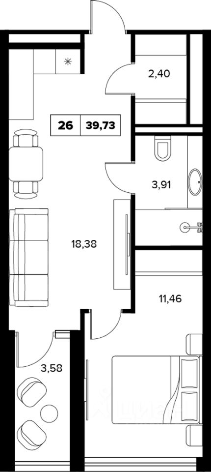
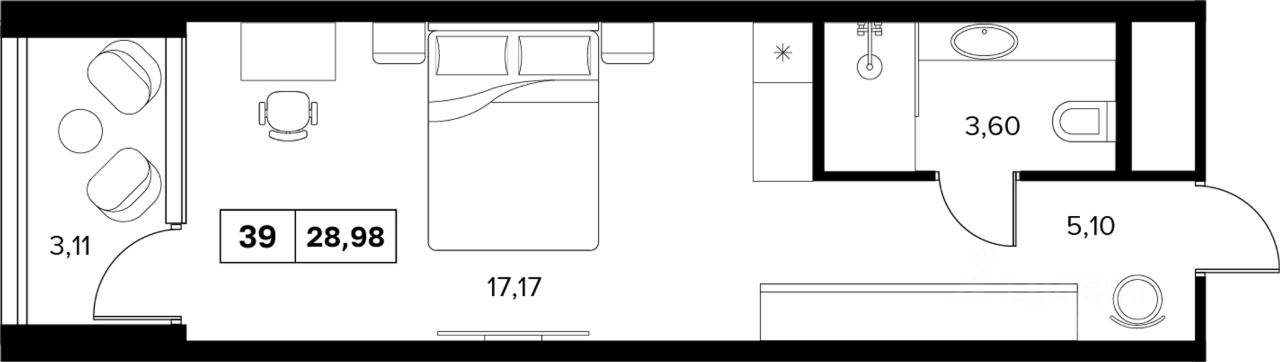
Продаются 2-комнатные апартаменты в сданном доме (Дом 1 ), срок сдачи: III-кв. 2025, общей площадью 36.5 кв.м., на 2 этаже. Новый жилой дкомплекс от застройщика ''Неометрия'' расположен по адресу город Сочи, улица Ленина.
36 м2
2 / 10 этаж
Кирпич - монолит
- Показать контакты
- Добавить в избранное
36 м2
2 / 10 этаж
Кирпич - монолит
43 093 000
1 180 630 /м2
Новостройка,
дом сдан
дом сдан
