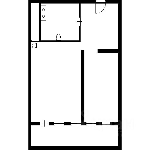
Долгосрочная аренда квартиры в ЖК Идеал Хаус Сочи!
Один из самых заметных комплексов в Сочи, панорамные лифты, собственная инфраструктура в которую входит подогреваемый бассейн, тренажерный зал, магазин, аптека, частный детский сад, паркинг и многое другое!
Квартира с просторной террасой, виражными раздвижными окнами и потрясающим видом на море! Выделенная спальня, кухня, гостиная и совмещенный санузел. Установлена централизованная система кондиционирования. Квартира полностью укомплектована мебелью и бытовой техникой, посудой и всем необходимым для проживания.
Долгосрочная аренда квартиры в ЖК Идеал Хаус Сочи!
Один из самых заметных комплексов в Сочи, панорамные лифты, собственная инфраструктура в которую входит подогреваемый бассейн, тренажерный зал, магазин, аптека, частный детский сад, паркинг и многое другое!
Квартира с просторной террасой, виражными раздвижными окнами и потрясающим видом на море! Выделенная спальня, кухня, гостиная и совмещенный санузел. Установлена централизованная система кондиционирования. Квартира полностью укомплектована мебелью и бытовой техникой, посудой и всем необходимым для проживания.
Условия аренды: - Стоимость: 01 октября - 30 мая: 80 000р в месяц 01 июня - 30 сентября: 130 000р в месяц - КУ оплачиваются отдельно (вся квитанция) - Страховой депозит 80 000р (возвращается сразу при выезде, при условии что имущество целое и нет задолженности по КУ) - Комиссия 40 000р единоразово при заключении договора аренды - Только на летние месяцы не сдается