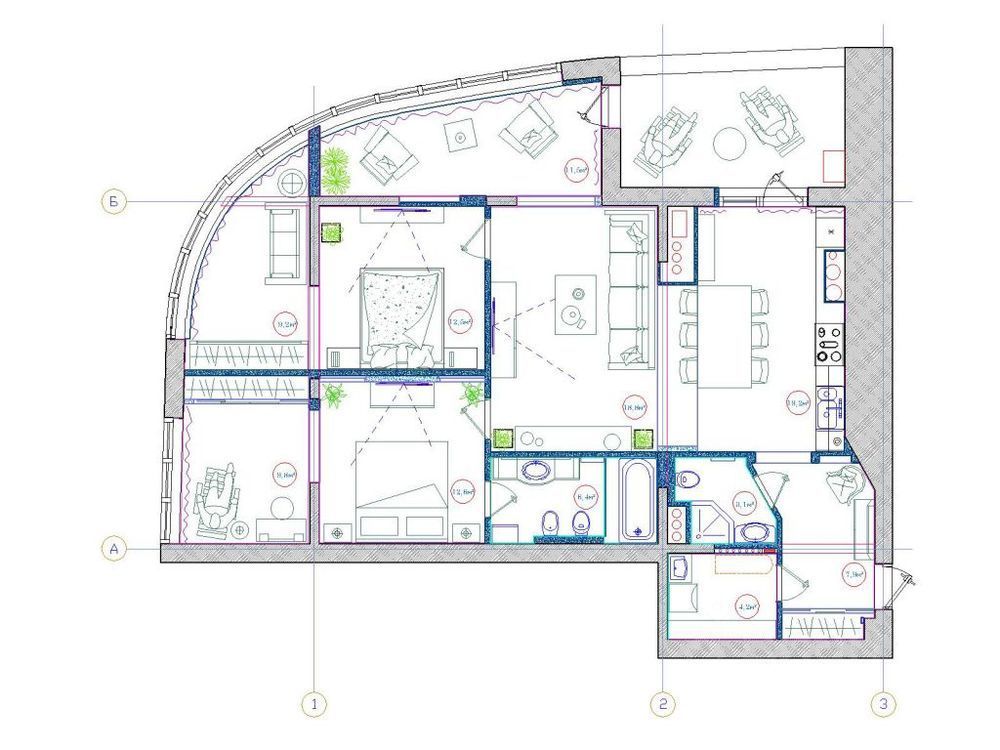
Продаю уютную светлую квартиру, в доме бизнес класса, в центральной части города, в 3 минутах пешком от морского порта.
Квартира полностью укомплектована, есть всё необходимое, заходи и живи!
Рядом есть вся инфраструктура (магазины, кафе, аптеки, остановка и тд)
Документы готовы к сделке, звоните.
