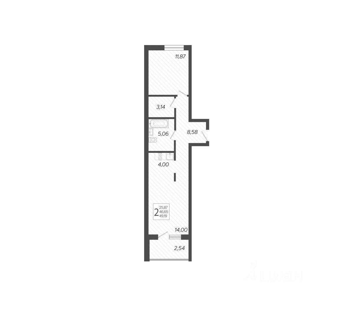
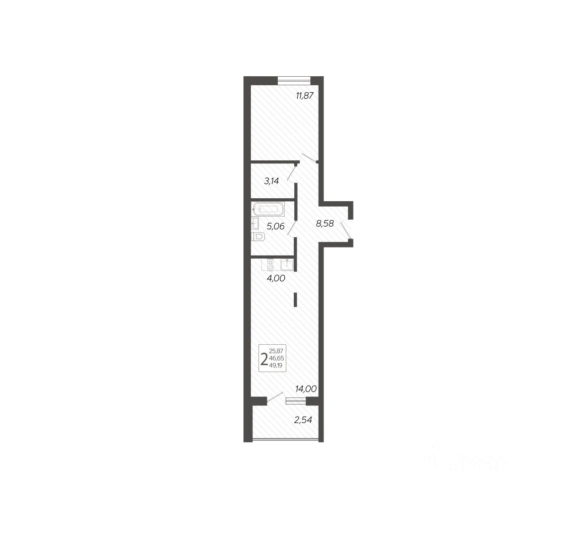
Продаётся 2-комнатная квартира в сданном доме (Корпус 9), срок сдачи: IV-кв. 2023, общей площадью 50.4 кв.м., на 1 этаже. Жилой комлекс ''Кислород'' представляет комплексную застройку, состоящую из 20-ти этажных монолитных домов.
Застройщиком спроектированы одно-, двух- и трехкомнатные квартиры.
Благоустройство прилагающей территории включает в себя строительство детской и спортивной площадки, а также гостевой автостоянки.







