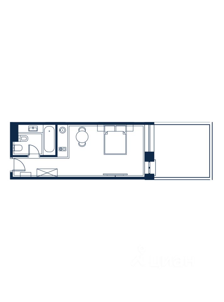
Продаётся 1-комнатная квартира в строящемся доме (Дом 3), срок сдачи: II-кв. 2028, общей площадью 31.36 кв.м., на 1 этаже. Volna Residence - это комплекс для жизни на территории комплекса Volna, объединённый с отелем общей концепцией и инфраструктурой. 3 малоэтажных корпуса на 520 номеров расположены на первой береговой линии и имеют собственный бассейн.
Территория комплекса Volna - 7,2 га. Более половины этой территории занимает парк и инфраструктура для жизни и отдыха.

















































